CASA CERCEDILLA
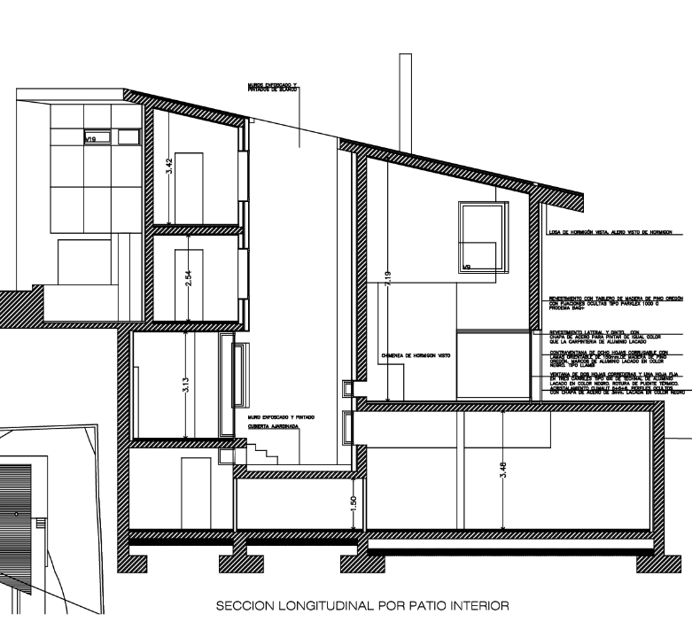
Sección Longitudinal
Planta
Sección Transversal
Alzado Principal
Vivienda en la sierra de Madrid, un proyecto con un aire moderno realizado con estructura metálica y con fachada de hormigón visto, dándole a la casa un carácter industrial y destacando así con las construcciones de su entorno.
A continuación, mostramos la planimetría que hemos realizado para este proyecto.
Si quieres saber más sobre nuestros proyectos te animamos a que nos sigas en nuestras redes sociales.
SIGUENOS EN NUESTRAS REDES SOCIALES
Nos basamos en el trabajo colectivo y el conocimiento compartido, Evvers es un estudio de ingeniería y arquitectura con el objetivo de favorecer el diálogo y el debate, para transformar el conocimiento individual en un mayor potencial creativo.
CONTACTA

91 654 55 99
evvers@evvers.com
Calle de Cartagena, 23, 28028
(Madrid)
SERVICIOS
ENLACES DE INTERES
arquitectura pasiva
ingeniería activa