CIUDALCAMPO
Planta Baja
Planta Sotano
Planta Primera
Planta Altillo
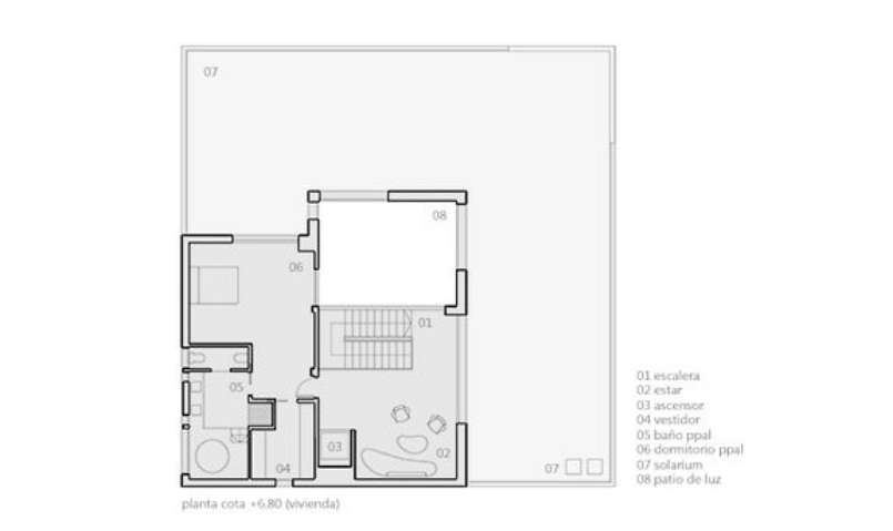
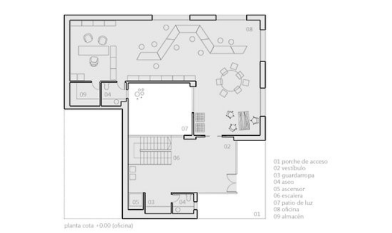
Una vivienda situada en las Rozas, en un entorno urbano y desarrollada en tres plantas con un patio central donde se encuentra el núcleo de comunicaciones. La última planta se plantea con una gran terraza ático en la que podemos disfrutar de las vistas de la parcela.
A continuación, mostramos la planimetría que hemos realizado para este proyecto.
Si quieres saber más sobre nuestros proyectos te animamos a que nos sigas en nuestras redes sociales.
SIGUENOS EN NUESTRAS REDES SOCIALES
Nos basamos en el trabajo colectivo y el conocimiento compartido, Evvers es un estudio de ingeniería y arquitectura con el objetivo de favorecer el diálogo y el debate, para transformar el conocimiento individual en un mayor potencial creativo.
CONTACTA

91 654 55 99
evvers@evvers.com
Calle de Cartagena, 23, 28028
(Madrid)
SERVICIOS
ENLACES DE INTERES
arquitectura pasiva
ingeniería activa