RESTAURANTE AYLLON
Axonometría Desplegada
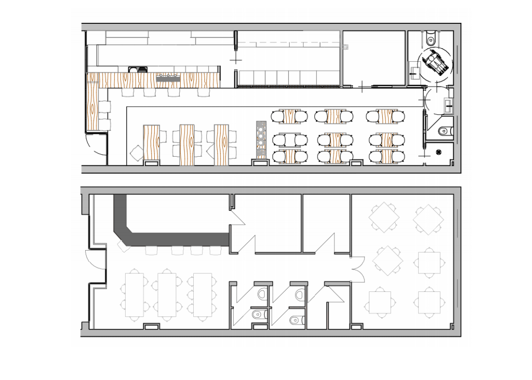
Plantas
Sección 1
Sección 2
Remodelación del restaurante Ayllon en Alcobendas. Con un estilo industrial que destaca la arquitectura y aunque aportamos cierta calidez con la barra de madera y el jardín horizontal que cuelga de la estructura del falso techo.
A continuación mostramos la planimetría que hemos realizado para este proyecto a través de la metodología BIM.
Si quieres saber más sobre nuestros proyectos te animamos a que nos sigas en nuestras redes sociales.

SIGUENOS EN NUESTRAS REDES SOCIALES
Nos basamos en el trabajo colectivo y el conocimiento compartido, Evvers es un estudio de ingeniería y arquitectura con el objetivo de favorecer el diálogo y el debate, para transformar el conocimiento individual en un mayor potencial creativo.
CONTACTA

91 654 55 99
evvers@evvers.com
Calle de Cartagena, 23, 28028
(Madrid)
SERVICIOS
ENLACES DE INTERES
arquitectura pasiva
ingeniería activa