CASA LOZOYA
Axonometría Desplegada
Alzado
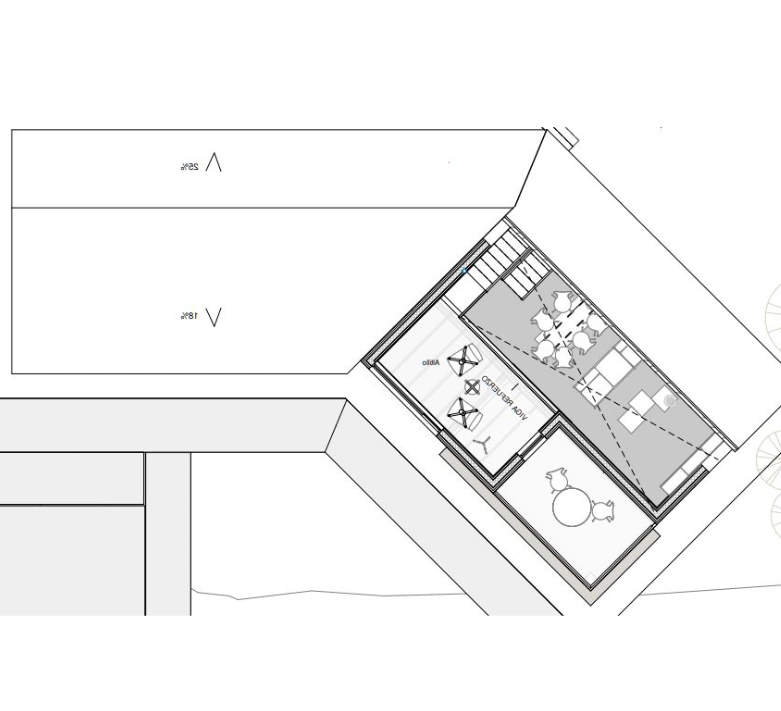
Planta Baja
Planta Altillo
Una passivhaus de bajas emisiones que genera un espacio agradable para los que la habitan en cualquier época del año. Constructivamente gracias a la madera se reduce bastante el tiempo de obra y hace que la construcción sea más eficiente.
A continuación mostramos la planimetría que hemos realizado para este proyecto a través de la metodología BIM.
Si quieres saber más sobre nuestros proyectos te animamos a que nos sigas en nuestras redes sociales.

SIGUENOS EN NUESTRAS REDES SOCIALES
Nos basamos en el trabajo colectivo y el conocimiento compartido, Evvers es un estudio de ingeniería y arquitectura con el objetivo de favorecer el diálogo y el debate, para transformar el conocimiento individual en un mayor potencial creativo.
CONTACTA

91 654 55 99
evvers@evvers.com
Calle de Cartagena, 23, 28028
(Madrid)
SERVICIOS
ENLACES DE INTERES
arquitectura pasiva
ingeniería activa