LA VIRGEN 154
Axonometría Desplegada
Sección Longitudinal
Sección Transversal
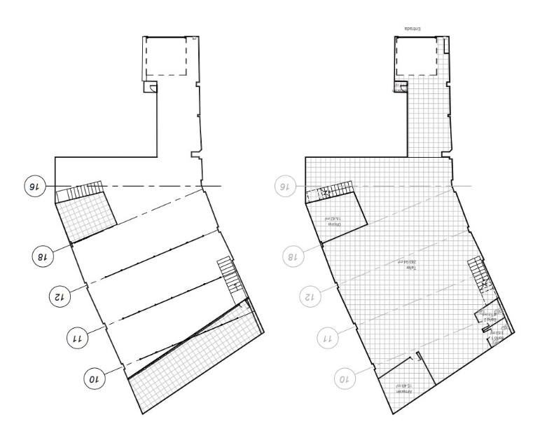
Planta Baja
A continuación mostramos la planimetría que hemos realizado para este proyecto a través de la metodología BIM.
Si quieres saber más sobre nuestros proyectos te animamos a que nos sigas en nuestras redes sociales.

Cervecería La Virgen 154 se encuentra en la calle de José Abascal. Un proyecto innovador que mezcla la emoción por lo artesano y el carácter industrial del proceso de fabricación de la cerveza.
SIGUENOS EN NUESTRAS REDES SOCIALES
Nos basamos en el trabajo colectivo y el conocimiento compartido, Evvers es un estudio de ingeniería y arquitectura con el objetivo de favorecer el diálogo y el debate, para transformar el conocimiento individual en un mayor potencial creativo.
CONTACTA

91 654 55 99
evvers@evvers.com
Calle de Cartagena, 23, 28028
(Madrid)
SERVICIOS
ENLACES DE INTERES
arquitectura pasiva
ingeniería activa