REHABIITACIÓN ENERGETICA

 QUINTANA

Axonometría Desplegada
Planta Cubierta
Alzado
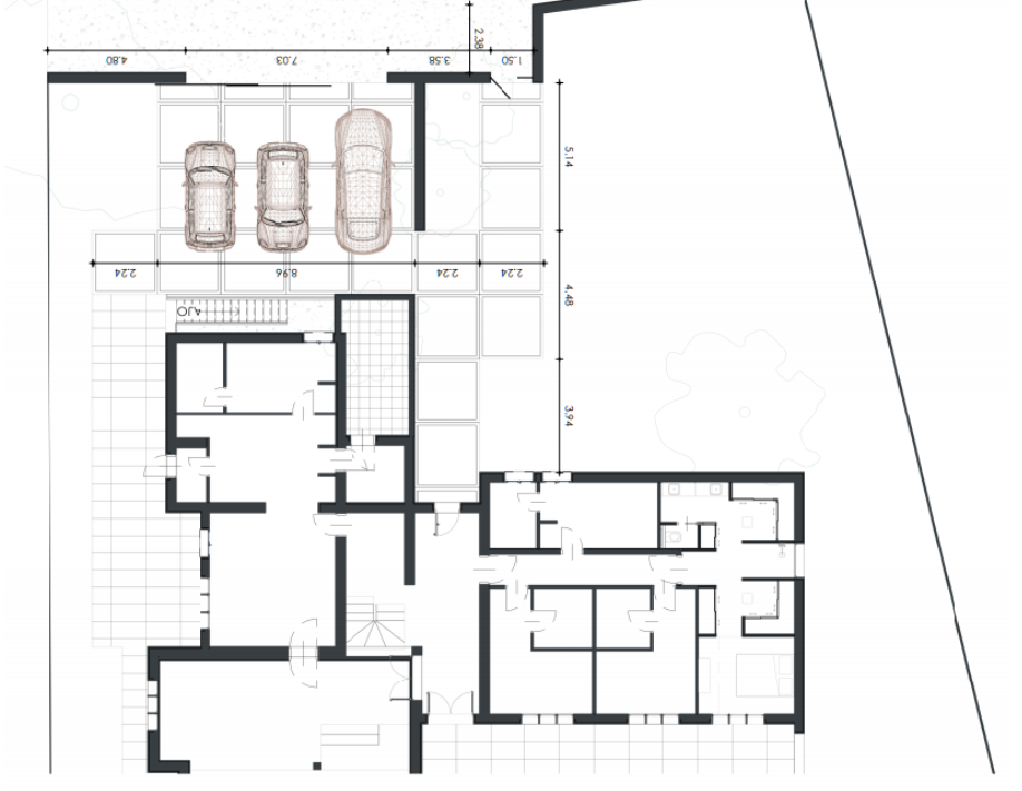
Planta Baja
En esta vivienda al rehabilitar la cubierta y la envolvente hemos ensalzado la geometría original de la vivienda. Siempre que rehabilitamos tenemos en cuenta las estrategias para que una vivienda sea autosuficiente buscando siempre la reducción del consumo energético. Por ello integramos a nuestro diseño todas las instalaciones necesarias.
A continuación mostramos la planimetría que hemos realizado para este proyecto atreves de la metodología BIM.
Si quieres saber más sobre nuestros proyectos te animamos a que nos sigas en nuestras redes sociales.
SIGUENOS EN NUESTRAS REDES SOCIALES
Nos basamos en el trabajo colectivo y el conocimiento compartido, Evvers es un estudio de ingeniería y arquitectura con el objetivo de favorecer el diálogo y el debate, para transformar el conocimiento individual en un mayor potencial creativo.
CONTACTA

91 654 55 99
evvers@evvers.com
Calle de Cartagena, 23, 28028
(Madrid)
SERVICIOS
ENLACES DE INTERES
arquitectura pasiva
ingeniería activa