CASA ARCANA
Casa Pasiva certificada, es un proyecto que emana cierto secretismo al ocultarse a la calle y liberándose al interior de la parcela, haciendo que la casa tenga más privacidad. Constructivamente esta casa esta realizada con sistema pre-industrializado de paneles de madera en 2D, que reduce bastante el tiempo de obra y hace que la construcción sea más eficiente.
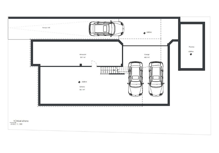
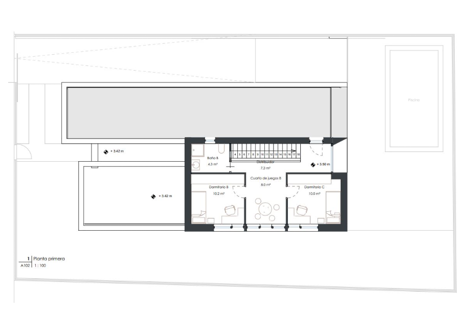
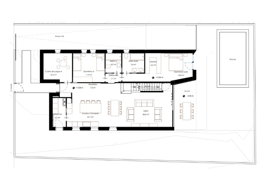
A continuación mostramos la planimetría que hemos realizado para este proyecto a través de la metodología BIM.
Si quieres saber más sobre nuestros proyectos te animamos a que nos sigas en nuestras redes sociales.

Axonometría Desplegada
Planta Baja
Planta Primera
Planta Sótano
SIGUENOS EN NUESTRAS REDES SOCIALES
Nos basamos en el trabajo colectivo y el conocimiento compartido, Evvers es un estudio de ingeniería y arquitectura con el objetivo de favorecer el diálogo y el debate, para transformar el conocimiento individual en un mayor potencial creativo.
CONTACTA

91 654 55 99
evvers@evvers.com
Calle de Cartagena, 23, 28028
(Madrid)
SERVICIOS
ENLACES DE INTERES
arquitectura pasiva
ingeniería activa